by Melissa | Mar 1, 2016 | Casa Grande, Government
Casa Grande city manager retiring By Kevin Reagan | Casa Grande Dispatch City Manager Jim Thompson plans to retire this August after more than 30 years of public service Thompson, 52, said it was time to take a break and decipher what he wanted to do next. He said...
by Melissa | Feb 24, 2016 | Casa Grande, Government
Snider announces bid for Casa Grande council seat By Kevin Reagan | Casa Grande Dispatch David Snider has worn quite a few different hats since he came to Casa Grande in 1977. Library director, interim city manager and Pinal County supervisor are some of the titles...
by Melissa | Feb 17, 2016 | Casa Grande
PhoenixMart may be in deep trouble with the Feds CASA GRANDE, AZ (CBS5) – The US Attorney’s office, FBI, Securities and Exchange Commission, and the US Customs and Immigration Service are investigating possible abuses by officials from PhoenixMart, for its involvement...
by Melissa | Feb 17, 2016 | Casa Grande, Economy
Number of Canadians in Casa Grande down somewhat By Kevin Reagan | Casa Grande Dispatch Canada’s weak dollar is not enough to keep Gail Willis from enjoying the Arizona sun. The Toronto resident will spend the next two months at an RV park near Picacho with her...
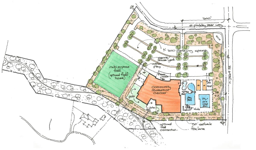
by Melissa | Feb 12, 2016 | Casa Grande, Government
Powell in favor of Grande Sports World; others prefer site off Peart, Cottonwood By Kevin Reagan | Casa Grande Dispatch Not one City Council member objects to creating a community recreation center, though where to put such a facility is a matter of differing...
by Melissa | Feb 8, 2016 | Casa Grande
Tractor Supply sparks more industry interest in Casa Grande By Kevin Reagan | Casa Grande Dispatch About 400 acres on the western edge of Casa Grande is being proposed for rezoning with the purpose of attracting industrial buyers. Land broker Kirk McCarville said...